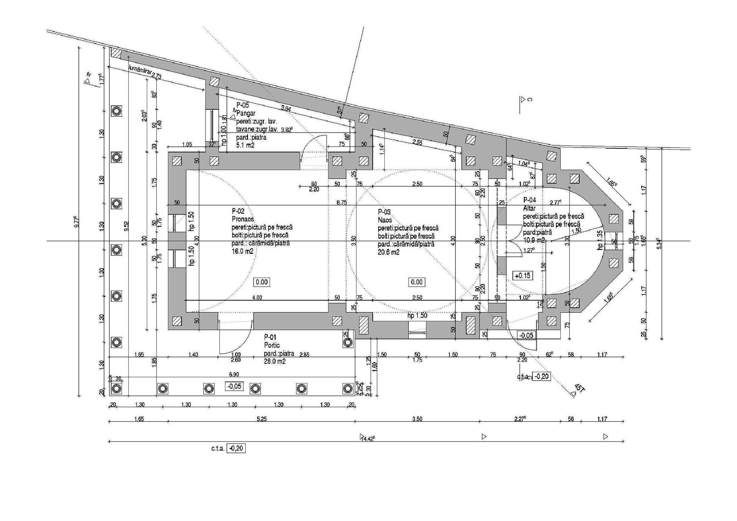
Paraclis

Paraclisul spitalului Cantacuzino
București, sector 3

Un proiect care se așează cu discreție într-un loc cu multe constrângeri, începând cu terenul de dimensiuni reduse pâna la vecinătatea cu un monument istoric.

paraclis-0paraclis-1paraclis-2paraclis-3paraclis-4paraclis-5paraclis-6paraclis-7